異型路基排水邊溝滑模機
-
異型路基排水邊溝滑模機適用于不規則形狀的道路排水邊溝(三角形邊溝,V型邊溝、L型等均可),多半為公路路肩和排水溝結合的設計部分,路基排水邊溝一次成型現澆滑模機械可以提高工程施工效率。
現場施工視頻:有,請聯系業務人員。
機器價格:溝渠尺寸大小定制,一機一渠。
行走速度:60米/小時,4天發貨。
產品詳細
異型路基排水邊溝滑模機,主要應用場合:公路道路路肩路基與排水功能的結合設計結構。

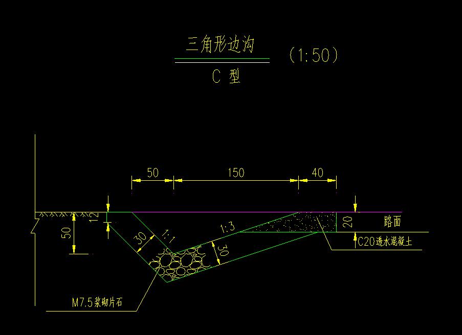
圖1:三角形路基排水邊溝圖紙

圖2:異型排水渠道設計圖
注:圖紙設計為較早期(2008年)設計樣式為M7.5漿砌片石,現在主流的均為C30混凝土設計。
附部分現場案例:

圖3:甘南異型公路邊溝施工現場
圖4:異型路肩水溝滑模機在做側邊擋水墻(可做不對稱型水溝)
邊溝機器可以自動行走,無需牽引,無需鋪軌道。一個人操作機器即可,自拌料或是混凝土罐車直接上料均可,得到了全國個施工隊的喜愛和肯定。設備可連續反復運作,是利用了先進的PLC電氣系統等液壓和電氣技術,保證了機器的運作協調能力,和水泥壓實成份密度均勻。
為降低零配件可降低生產故障產生,給施工帶來的麻煩和負面影響,同時也一定會給我廠產品造成負面口碑,所以我廠生產的設備均采購,電器元件、液壓元件均采用知名品牌(合同均有備注說明);機械保證質量,穩定輸出才能真正意義上提高生產率。

定制三角形邊溝滑模機發貨圖
大型車載部分機型不僅可以制作排水邊溝,也可以用于各種異型的路肩路沿滑膜施工。
路基排水邊溝施工工藝當前首選的一定機械化施工,我們根據不同的施工現場環境和成型要求,會為您推薦不同款式的路基排水邊溝滑模機樣式。
1、此類機器均為定制化設計,發貨時間一般為4-7天。
2、現場可以不建議用商混罐車送料,一般為普通半干硬性混凝土,坍落度在6-9mm之間的混凝土,罐車運輸不太方便。
3、公司安排技術員到現場指導使用,確保出成品。
4、機器零配件均為品牌,機器穩定工作才能真正提高效率,才有機會形成正面口碑。

三角形公路路基邊溝滑模機(打木箱出口秘魯)
